Finca rustica en santa margalida con licencia pendiente

  • 241,000€
Destacado en venta
  • Finca con edificación
  • Categoría
  • C1501
  • Referencia
  • 0
  • Habitacion

Resumen

Referencia: C1501
  • Finca con edificación
  • Categoría
  • C1501
  • Referencia
  • 0
  • Habitacion

Descripción

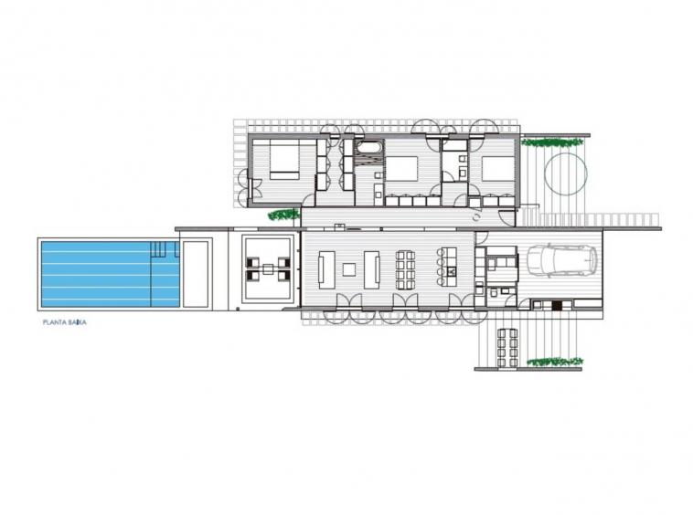
Si lo que buscáis es una finca rustica en una zona tranquila y preciosa esta es su oportunidad , no importa tener paciencia , le entregamos una finca con el proyecto ya aprobado y pendiente de pago de las tasas para empezar a construir . El proyecto prevé la construcción de 283 m 2 con un punto importante que es un garaje de 31 m2 construidos . la casa estará construida en una única planta ofreciendo un amplio salón comedor con cocina abierta dando a una terraza con orientación suroeste , la parte noche nos proporciona 3 habitaciones dobles , una en suite con vestidor y baño , y dos que comparten baño , hay que destacar que también la casa tiene lavadero y aseo de invitados , afuera encontramos la piscina de 34 m2 , la terraza y el porche . la sala de maquina estará enterada , también tenemos una caseta ya existente de unos 8 m2 que se puede utilizar como almacén . La zona no permite pozo entonces tendrá la casa una cisterna y energías renovables . Quedamos a su disposición para aclararle las cosas .

Nuestra empresa cuenta con una trayectoria profesional de aproximadamente 30 años de actividad en la zona nordeste de Mallorca, ofreciendo servicios inmobiliarios con dedicación, transparencia y conocimiento del mercado local.
Asimismo, se hace constar que Gabriel Pascual Font se encuentra colegiado en la Asociación Balear de Asesores Inmobiliarios bajo el número 1260, y está inscrito en el Registro de Agentes Inmobiliarios de las Illes Balears (RAIIB) con el número GOIBE787033/2024, cumpliendo así con los requisitos legales y profesionales exigidos para el ejercicio de la actividad.
Información Legal y Transparencia Económica”,

NOTA INFORMATIVA CONFORME AL ART. 20 TRLGDCU
El precio de venta publicado no constituye una oferta vinculante y no incluye los gastose impuestos derivados de la compraventa.
Tributación: La operación en principio está sometida a ITP
Gastos aproximados de Adquisición:
ITP (8% – 10 % ): aquí 18200
Notaría y Registro: entre 0.2 y 0.5 % aquí 1.200 €
Gestoría: 500 €
Total, aproximado: 20.000

Los honorarios de la inmobiliaria están a cargo del vendedor a menos que las partes pactan otra modalidad.
El precio final impuestos incluidos depende de la situación fiscal del comprador. La plus valia municipal esta a cargo del vendedor. Los impuestos IBI y basura estarán prorrateados función de la fecha de compra.

Hay que tener en cuenta que aqui el proyecto ejecutivo y las tasas del ayuntamiento estarán a cargo del comprador para la obtención de la licencia .

Detalles

Actualizado en abril 20, 2026 a 7:09 am
  • Referencia: C1501
  • Precio: 241,000€
  • Superficie construida: 283
  • Àrea: 14806
  • Habitacion: 0
  • Baño: 0
  • Categoría: Finca con edificación
  • Operación: en venta

Dirección

  • Población Santa Margalida
  • Isla Mallorca
  • Zona Santa Margalida

Energy Class

  • Clase energética: Pendiente / pending
  • Nivel de consumo: Pendiente / pending
  • A+
  • A
  • B
  • C
  • D
  • E
  • F
  • G
  • H

Santa Margalida

Santa Margarita es una localidad y municipio español situado en la parte septentrional de Mallorca, y forma parte de la comarca tradicional del Llano de Mallorca. Destaca por la producción cerealista y de frutos secos de cáscara.

Comparar listados

Immopascual
  • Immopascual
Immopascual
Resumen de privacidad

Esta web utiliza cookies para que podamos ofrecerte la mejor experiencia de usuario posible. La información de las cookies se almacena en tu navegador y realiza funciones tales como reconocerte cuando vuelves a nuestra web o ayudar a nuestro equipo a comprender qué secciones de la web encuentras más interesantes y útiles.